kontakt@domnazgloszenie.pl
+48 731 592 973

Projekt domu na zgłoszenie do 70 m2 M289_V1

1 999,00 

Ofertę stanowi projekt domu mieszkalnego jednorodzinnego „M289” na procedurę zgłoszenia. Projekt jest wysyłany w formie papierowej.

Opis

Dom bez pozwolenia!!

Witaj. Zapraszamy do zapoznania się z naszą ofertą projektu wolnostojącego budynku mieszkalnego jednorodzinnego w technologii szkieletowej drewnianej na płycie fundamentowej z możliwością wybudowania bez konieczności uzyskania pozwolenia na budowę.

Ofertę stanowi projekt domu mieszkalnego jednorodzinnego „M289” na procedurę zgłoszenia. Projekt jest wysyłany w formie papierowej.

Konstrukcja budynku
Budynek posiada ściany szkieletowe drewniane wraz z dociepleniem, dach drewniany, oraz strop drewniany.

Istnieje możliwość przeprojektowania na inną technologię np. tradycyjną murowaną (oferta dostępna mailowo).

Wymiary budynku

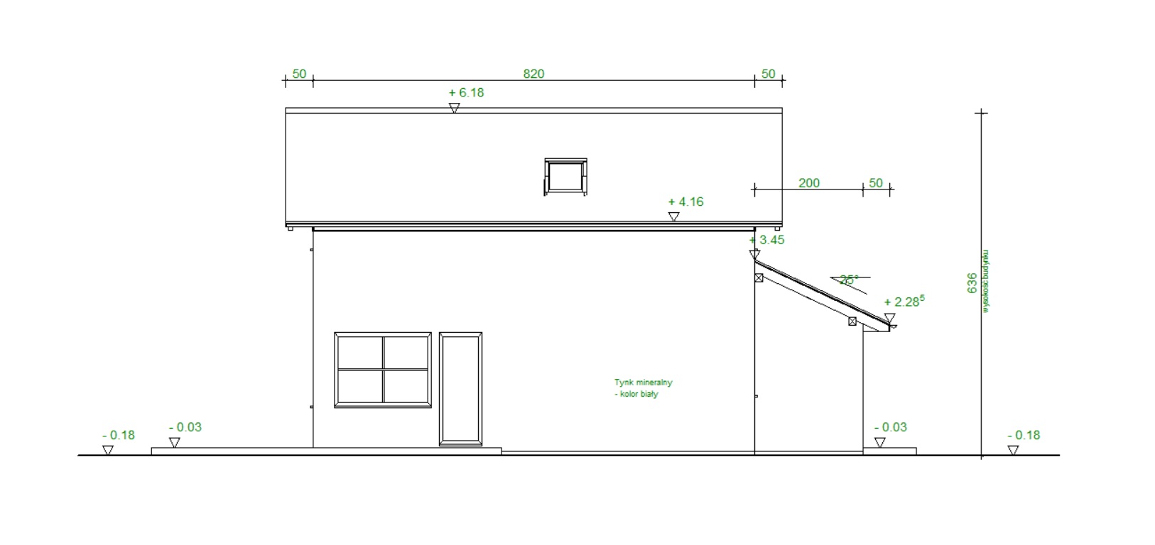
Wymiary zewnętrzne budynku to 6.00×10.20m. Wysokość budynku to 6.36 m. Dach dwuspadowy 30 stopni oraz 25 stopni.

Istnieje możliwość przeprojektowania budynku pod względem gabarytów (szerokości, długości) i/lub kąta nachylenia dachu itd. (oferta dostępna mailowo).

Możliwość przeprojektowania fundamentów na tradycyjne (oferta dostępna mailowo).

Zawartość dokumentacji:

  • PROJEKT ARCHITEKTONICZNO-BUDOWLANY TYPOWY – 3 egzemplarze
  • PROJEKT TECHNICZNY – INSTALACJE ELEKTRYCZNE TYPOWY – 2 egzemplarze
  • PROJEKT TECHNICZNY – KONSTRUKCJA TYPOWY – 2 egzemplarze
  • PROJEKT TECHNICZNY – INSTALACJE SANITARNE TYPOWY – 2 egzemplarze

Prostota konstrukcji budynku dzięki czemu większość prac można wykonać samodzielnie.

Wolnostojące budynku o powierzchni zabudowy do 70m2 są świetnym rozwiązaniem ze względu na uproszczoną procedurę urzędową.

– budowa nie wymaga angażowania kierownika budowy

– budowa nie wymaga prowadzenia dziennika budowa

Sprzedajemy projekt budynku mieszkalnego jednorodzinnego na zgłoszenie który nie wymaga Pozwolenia na budowę.

Więcej zdjęć/wizualizacji oraz film można zobaczyć na www.youtube.com/@domnazgloszenie

Możliwość szybszej wysyłki tylko i wyłącznie po ustaleniu indywidualnym przed zakupem.

UWAGA!!

Przed zakupem projektu należy sprawdzić czy na danej działce można zbudować tego typu budynek mieszkalny jednorodzinny.

Przed dokonaniem zakupu proszę skonsultować w urzędzie możliwość oraz warunki postawienia takiego domu, w celu uniknięcia niepotrzebnych nieporozumień.

Zmiany w projekcie

Do projektu jest dołączona zgoda na dokonywanie zmian które nie ingerują w konstrukcję budynku.

Wyrażamy również zgodę na dokonywanie zmian ingerujących w konstrukcję. Należy sprawdzić i przeliczyć nowe elementy konstrukcji przez osobę posiadające stosowne uprawnienia. Wszelkie zmiany konstrukcyjne bez sprawdzenia przez osobę posiadającą stosowne uprawnienia na własną odpowiedzialność inwestora.

Opinie

Na razie nie ma opinii o produkcie.

Napisz pierwszą opinię o „Projekt domu na zgłoszenie do 70 m2 M289_V1”

Twój adres e-mail nie zostanie opublikowany. Wymagane pola są oznaczone *